Telegraphic Typewriters


Naval Order 4372 outlines the introduction of telegraph typewriters to the RCN and a subsequent one (Naval Order 5124) elaborates on the issue of typewriters being fitted to ships that are being dispatched to the Pacific fleet  These orders are are believed to be dated around mid-1945 based on the July 12/45 date of the drawing.

Order 4372. Telegraph Typewriters - Introduction ( Issued on February 3rd 1945)

Telegraph typewriters will shortly be introduced into the R.C.N. to replace the present method of copying signals by pencil and pad, both ashore and afloat.

2. The conversion from the old to the new method will obviously be governed by the time taken for W/T Ratings to become sufficiently competent at typing and they should take every opportunity to practice touch typing; firstly by  typing messages from any written material (other than restricted and above) and then, after a reasonable speed has been attained, by copying signals direct from the "air." This particularly applies to ratings who have not taken typing  instruction at H.M.C. Signal School.

3. In H.M.C. Ships for the present, only the main area broadcast is to be copied by typewriter but not until the W/T Ratings concerned are considered competent enough to do so. This decision is the responsibility of the Signal and Commanding Officers.

4. In Shore W/T Stations it is intended that the maximum number of lines where hand speed is employed should be copied by typewriter. This number will be governed by the supply of typewriters and the typing ability of the W/T Ratings. Officers-in-Charge are to ensure that the change is made as soon as practicable.

5. Entries in the W/T Operator's Log are of course to continue to be made in pencil.

6. All signals received during WIT exercises should be copied normally by typewriter.

7. The telegraph typewriters are fitted with a special keyboard and a paper roll attachment. Paper rolls will be supplied as follows:--
(a) Single copy to H.M.C. Signal School for training purposes.
(b) Two copy (white original and yellow duplicate) to H.M.C. Ships and Shore W/T Stations.
The two copy rolls are not to be used for typing practice. Naval message forms or any suitable scrap paper is to be used for this purpose.

8. The paper contained in the roll is blank. The message layout as typed is to follow the same form as though it had been copied on Naval message form S1320b.

9. (a) Sufficient quantities of typewriters will be forwarded to Naval Stores at Halifax and Vancouver to enable issue of one in number to each of the following:-

Cruisers                                 Frigates
L.S. (M) H                            Corvettes
Auxiliary AA Ships                Algerines
M/L Depot Ships                   Bangors
Destroyers

Other bases are to demand requirements for re-issue to the above from Naval Stores Officers at Halifax or Vancouver, whichever is nearer. Ships are to be supplied as they arrive at bases in Canada. Stocks will not be sent abroad to enable issue to be made. It is emphasized that the issue above is for use in the Main W/T Offices of H.M.C. Ships and W/T Stations ashore to which they are issued. The supply to Destroyers and above will be increased at some future date as machines become available.
(b) One hundred typewriters for instructional purposes will be issued to H.M.C. Signal School, direct from Montreal W/T Stores.
(c) Shore W/T Stations are to be supplied as follows:-
 Station  .  Quantity From
 Halifax W/T (Albro Lake)  10  N.S.O. Halifax
 Ottawa W/T (Receiving Station)  4  Montreal WIT stores
 Vancouver W/T (Aldergrove)  6  N.S.0. Vancouver
 St. John's, N.F. (Receiving Station)  6  N.S.O. Halifax
 Prince Rupert, B.C. (Montreal Circle). .  6  N.S.O. Vancouver
(d) The serial numbers of the typewriters issued to H.M.C. Ships and Shore W/T Stations are to be reported to The Director of Naval Stores, Naval Service Headquarters, Ottawa.

10. (a) Sufficient quantities of two copy paper rolls will be forwarded to Naval Stores at Halifax and Vancouver to enable issue of thirty-six rolls per typewriter to H.M.C. Ships and Shore W/T Stations.
      (b) Thirty-six single copy paper rolls per typewriter will be issued to H.M.C.  Signal School.
      (c) Rolls will be shipped in cartons of twelve.
      (d) Subsequent requirements are to be demanded in the usual manner. N.S.O's Halifax and Vancouver are to
           ensure that demands are  forwarded in sufficient time to enable requirements to be met.

11. The attached Naval Order drawing No. 4372 shows' the telegraph typewriter keyboard.
 (N.S. 7250-1)

Click to enlarge
tel_twriter_kybd_s.jpg Order 4372. The = symbol  (immediately to the right of the letter L) was referred to as the long break and was sent as letters BT run together. The ending sign + was sent as AR run together. Two keys away, and to the right of the letter L was a "dead" key which would print a line and then, without the carriage moving, the operator could type an accented or Tiddley" (special) letter.
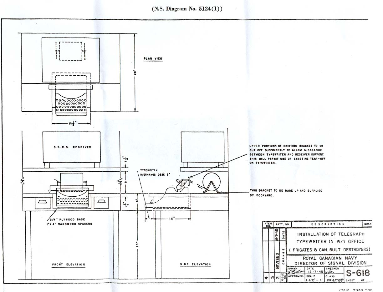
tel_twriter_layout_s.jpg Order 5124(1) - This drawing shows how the telegraphic typewriter was to be installed in the desk aboard Frigates and Canadian built Tribal destroyers. 
tel_twriter_layout2s.jpg Order 5124(2) - This drawing shows how the telegraphic typewriter was to be installed in the desk aboard RN Tribal destroyers.
Order 5124. Telegraph Typewriters (Issued on August 18 1945)

With reference to Naval Order 4372, it has been decided to amend the issue of R.C.N. Telegraph Typewriters as follows:-

(A) SHIPS
1. Ships forming part of the Canadian Pacific Fleet and Pacific Fleet Reserve
 Cruisers . . . . . . . . . . . . . . . . . . 6
 Light Fleet Carriers. . . . . . . . . . 6
A.A. Ships. .  . . . . . . . . . . . . . .. .6
Flotilla Leaders . . . . . . . . . . . . . 6
Destroyers and Frigates . . . . . . .4
(1 each of numbers shown to be carried as spare; remainder to be fitted.)
2. Other Ships
              Destroyers . . . . . . . . . . . . . . . . . 1
              Frigates . . . . . . . . . . . . . . . . . . .  1
              Algerines . . . . . . . . . . . . . . . . . .  1
              Castle Class Corvettes. . . . . . . . . 1

Telegraph Typewriters will not be fitted in Flower Class Corvettes and Bangor Minesweepers. Machines and paper already issued to these ships are to be returned to Naval Stores.

(B) SIGNAL SCHOOLS AND TRAINING CENTRES
H.M.C. Signal School. . . . . . . . . . . . . . . . . . . . . . . . . . . . . . .. 100
Signal Training Centre Halifax . . . . . . . . . . . . . . . . . . . . . . .  .   20
"                "             “     Naden . . . . . . . . . . . . . . . . . . . . . . .  20
"                “                   Somers Isles. . . . . . . . . . . . . . . . . . ..   8

2. Ships will be supplied with Typewriters by bases concerned. Commanding Officers are to ensure that their Ships are thus supplied. Typewriters for Signal Training Centres will be issued direct from Montreal W/T Stores.

3. Base requirements are to be demanded in the usual manner. Naval Stores Officers, Halifax and Vancouver, are to ensure that demands are forwarded in sufficient time to enable requirements to be met.

4. Ships presently serving or building outside Canada which will not be returning to a Canadian port prior to departure for the Pacific are to signal their requirements to Naval Service Headquarters and supply will be made direct.

5. Typewriters are to be fitted in accordance with attached drawings.  It will be noted that no stowage position is provided.
6. Priority in fitting is to be as follows:
Canadian Pacific Fleet
Pacific Fleet Reserve
Other Ships.

7. Initial supply of two-copy R.C.N. Telegraph Typewriter paper is to be made as follows:-
(a) Canadian Pacific Fleet and Pacific Fleet Reserve
1. Flotilla Leaders and above  , 300 rolls
2. Destroyers and Frigates  ,...... 200 rolls
(b) All Other Ships. . . . . . . . . . . . . . . . . . . . . . . . . . . . . . . . . . . . . . . . . . . . . .50 rolls

8. Demands for replenishments from Ships of the Pacific Fleet should be made on Superintending Naval Stores Officer (R.N.), Brisbane, Australia. Demands from other ships should be made on Stationery Stores in Halifax, N.S., or Esquimalt, B.C.

9. Copying and Logging Messages by Telegraph Typewriter
The following information is promulgated as a general guide to the above.
(a) In bays where typewriters are available, all copying of messages will be by typewriter and entries normally made in the W/T Operator's Log (Form S325A) will be similarly typed on the paper rolls provided. The present instructions in front of Form S325A are to be adhered to in general. Forms S325A will of course cease to be used in those bays for which typewriters are provided.
(b) Double spacing should be used, ten code groups being typed per line. A space is to 'be left blank between the head of the message and the text, sufficient to permit a plain language version of the heading to be written in after decoding.
(c) On receipt of a message, the time of receipt, Operator's initials, frequency and date should be appended. Both copies of the message should then be torn from the machine and passed to the Coding Office or Bridge who will initial the duplicate and return it to the Operator as a receipt. The duplicate copies are to be placed on a file (S329A), which file thus becomes the W/T Operator's Log.
(d) It is appreciated that periods may occur during which the only traffic received may be in the nature of Procedure Messages or logging data which do not require reporting.  Should Log entries in these periods be considerable, paper should be torn from the machine in approximately foolscap lengths, the original placed on the Operator’s Log and the duplicate destroyed.
(e) When watch is being maintained in a bay for which no typewriter is available, pencil will be used.  Messages will be read on Form S1320C and logs kept using Form S325A as has hitherto been the practice.
 


Back to Naval Radio Operations WWII

Contributors and Credits:

1) Ray White <legerwhite@rogers.com>
 

Apr 24/09